STAGE TWO

1031 S VICTORY BLVD BURBANK 91502

TAP TWICE TO STREAM ON MOBILE

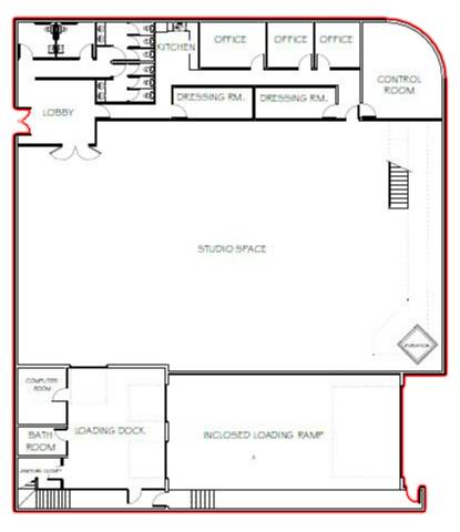
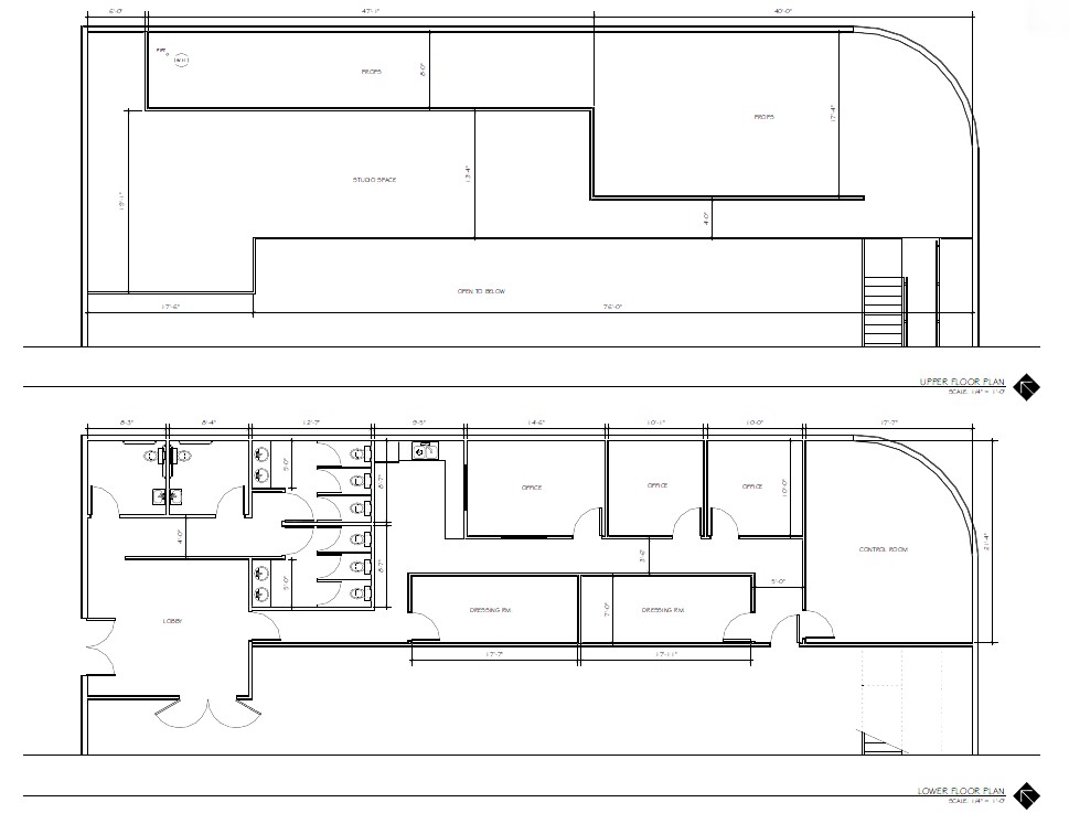
SPECS

FACILITY

TOTAL SPACE 11,266 sq ft
SHOOTING SPACE- 5200 sq ft
SUPPORT 4800 sq ft


SPECS
STAGE DIMENSIONS 98x48x22
COVE CYC 19x46x22
GROUND FLOOR FULLY SOUNDPROOF
LOADING DOCK 2 LOAD IN DOOR


AMENITIES/SUPPORT SPACE
PRODUCITON OFFICE W/OBSERVASION PORTALS

2 HAIR AND MAKEUP ROOMS
GREEN ROOM
COZY'S COFFEE SHOP